Tubbergen,
Newtonstraat
€ 30.500 v.o.n.
Bedrijfsverzamelgebouw op het bedrijventerrein 'de Haar' in Tubbergen
Over dit object
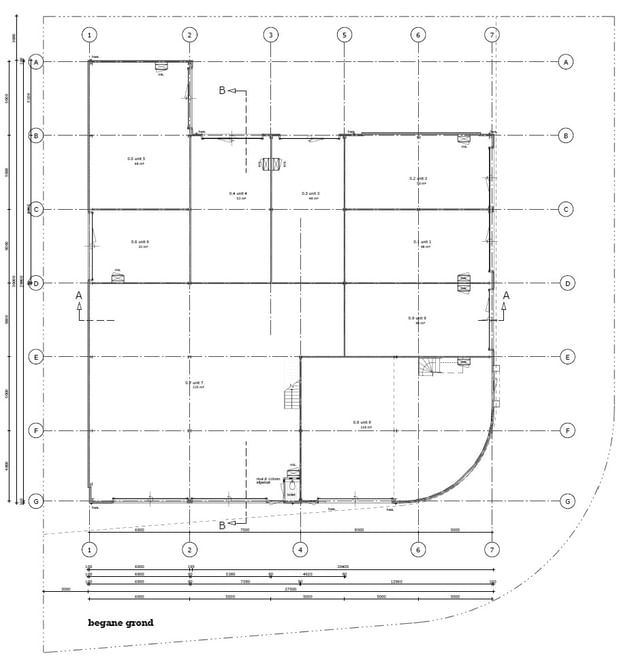
Hoogwaardig afgewerkt bedrijfsverzamelgebouw met diverse units in oppervlakte variërend van circa 35 m² tot 225 m².
In totaal worden er 9 units aangeboden met een koopprijs vanaf € 30.500,-. Deze units zijn geschikt voor opslag, stalling, kantoor, werkruimte etc.
Unit Oppervlakte Koopprijs
1 ca. 50 m² Verkocht
2 ca. 52 m² Verkocht
3 ca. 51 m² Verkocht
4 ca. 55 m² Verkocht
5 ca. 71 m² Verkocht
6 ca. 35 m² € 30.500,-
7 ca. 230 m² Verkocht
8 ca. 122 m² Verkocht
9 ca. 51 m² Verkocht
Bijzonderheden:
* Start bouw: najaar 2018
* Metalen draagconstructie met geïsoleerde stalen sandwichpanelen
* Stalen dak geïsoleerd (Rc 3,5 m²K/W)
* Monolite afgewerkte betonvloer (d=150 mm) met een vloerbelasting van 15kN/m² en een aslast van 40 kN
* Alle deuren, ramen, kozijnen en gevels worden uitgevoerd in kunststof
* De units worden voorzien van een handbediende overheaddeur van resp. 4 of 5 meter breed en ca. 4,8 meter hoog
* De units beschikken over een loopdeur in de overheaddeur of er naast
* De units worden voorzien van een eigen meterkast met aansluitingen voor water en elektra
* De eigenaren dienen zelf de door hen gewenste nutsaansluitingen aan te vragen
* Meterkast wordt geheel afgetimmerd volgens de geldende eisen van de nutsbedrijven
* Units worden v.v. toiletafvoer met aansluiting op het gemeentelijk riool
* De oppervlakten van de afzonderlijke units zijn op de tekening in circa maten aangegeven
* De genoemde prijzen zijn v.o.n., exclusief 21% BTW
* Reclame uitingen kunnen door de koper worden aangebracht conform de regelgeving van de gemeente Tubbergen, dan wel afspraken gemaakt binnen de VvE.
Uw makelaar voor dit object: Luc Weusthuis
- Bouwjaar
- 2020
- Perceel oppervlakte
- 600 m²
- Koopprijs
- € 30.500 v.o.n.
- Status
- Verkocht
- Overdracht
- In overleg
Onze specialist
Luc Weusthuis
- Register Makelaar | Register Taxateur, Wonen en Bedrijfsonroerendgoed
Op zoek naar een bepaald object?
Schrijf je in als woningzoekende en blijf op de hoogte van nieuw aanbod.