Tubbergen,
De Bloemenesch woning 5
prijs op aanvraag
GASLOOS bouwen op nieuwbouwplan de Esch in Tubbergen; een unieke (laatste) kans!
Over dit object
Wonen in plan "De Esch" is wonen op een unieke locatie aan de rand van Tubbergen.
Het nieuwbouwplan is gesitueerd op het terrein van het voormalige tuincentrum “De Esch” nabij het centrum van Tubbergen en wordt gebouwd door Bouwbedrijf Steggink uit Reutum. De wijk is ruimtelijk opgezet met een prachtig dorps karakter. Door de ruimtelijke, groene opzet en goede ligging vormt deze nieuw te bouwen wijk een overgangsgebied tussen de vele gemakken die het dorp biedt en de ruimte en fraaie natuur die het platteland biedt.
Nieuwbouwplan "De Esch" is prachtig gelegen op een goed ontsloten locatie op loopafstand van het centrum en het mooie landschap richting het Hondenven. Alvorens tot een nieuwe gebiedsinvulling te komen is een grondig onderzoek gedaan naar o.a. de geluidscontouren, de landschappelijke inpassing en de gang van de waterstromen.
De bouw van het gehele project van 51 woningen is inmiddels in volle gang. Vanaf maart 2023 wordt gestart met het bouwen op kavel 5 van het nieuwbouwplan ''De Esch''.
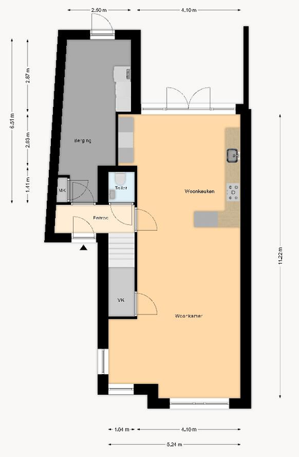
Begane grond
Entree naar de hal met trapopgang, berging, toiletruimte en ruime woonkeuken met openslaande deuren richting de tuin.
Eerste verdieping
Overloop, badkamer, twee ruime slaapkamers en een hobbykamer
Tweede verdieping
Middels een vaste trap te bereiken zolder.
- Type
- Eengezinswoning - Eindwoning
- Woonoppervlak
- 139 m²
- Inhoud
- 544 m³
- Aantal kamers
- 7
- Aantal slaapkamers
- 3
- Prijs
- Prijs op aanvraag
- Status
- Verkocht
- Overdracht
- In overleg
Bijzonderheden
- Bouwjaar: 2023
- Woonoppervlak: ca. 139 m²
- Inhoud: ca 544 m³
- De woning beschikt over zonnepanelen (12 stuks) en wordt volledig geïsoleerd
- Volledig voorzien van vloerverwarming
- De woning wordt gasloos gebouwd en wordt voorzien van warmtepomp en warmwaterboiler
- Mechanische ventilatie
- Gelegen in een volledige nieuwe bouw
- Prijs is inclusief aankoop bouwkavel, basis teken-en berekeningskosten, lucht/water warmtepomp (gasloos bouwen), stelpost keuken (€3.500,-) en grondverbetering
- Prijs is exclusief eventueel aanvullend tekenwerk, vrijstaande houten buitenberging, definitieve aansluitkosten NUTS, legeskosten, kast- en binneninrichtingen en woninginrichting + vloerafwerking, (grondwerk voor)bestratingen, beplanting en erfascheidingen
- CAR-polis door aannemer tijdens de bouw
- Meer- en minderwerk kan besproken worden met de aannemer.
Op zoek naar een bepaald object?
Schrijf je in als woningzoekende en blijf op de hoogte van nieuw aanbod.