Manderveen,
De Huiskamer - hoekwoning
€ 285.800 v.o.n.
Ontdek de levensloopbestendige woningen van “De Huiskamer”
Over dit object
In het hart van het rustige Manderveen, aan de groene Manderveenseweg, worden drie levensloopbestendige woningen gebouwd.
De huizen, gezamenlijk genoemd “De Huiskamer”, zijn speciaal ontworpen met het oog op een zorgeloze en comfortabele toekomst.
Hier vindt u alles wat u zoekt in een thuis: toegankelijkheid, comfort, en de vrijheid om volop te genieten van een landelijke omgeving zonder afstand te doen van het gemak van moderne voorzieningen.
De woningen zijn speciaal ontworpen met het oog op de toekomst. Met alle belangrijke ruimtes gelijkvloers ingericht, biedt iedere woning optimaal comfort en gemak. Zo kunt u hier, ongeacht uw levensfase, zorgeloos blijven wonen.
De kavels van “De Huiskamer” variëren van 145 m² tot 226 m², en bieden ruimte en privacy om echt van uw eigen plek te genieten.
Hieronder kijken we naar de rechter hoekwoning van ''De Huiskamer''. De hoekwoning heeft een kavelgrootte van 226m².
Indeling
Begane grond
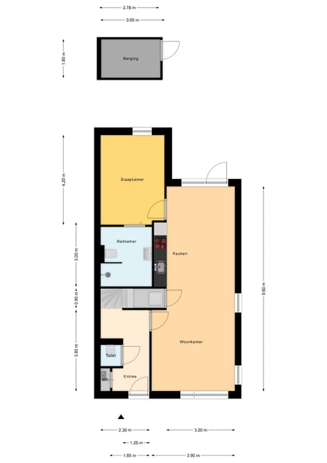
Bij binnenkomst in de nieuwbouwwoning komt u in de hal, waar het toilet, de trapopgang en de deur naar de lichte doorzonwoonkamer met open keuken zijn gesitueerd. De woonkamer beschikt over een trapkast, uitgerust met een aansluiting voor witgoedapparatuur. Via de open keuken bereikt u de royale slaapkamer voorzien van een ensuite badkamer. Daarnaast biedt de keuken toegang tot de moderne tuin met achteruitgang, welke voorzien kan worden van tuinmuren en een houten pergola. Vanuit de tuin is er directe toegang tot een ruime berging. Daarnaast bestaat de mogelijkheid om optioneel een carport aan de zijkant van de woning te realiseren.
Eerste verdieping
De eerste verdieping bestaat uit een overloop die leidt naar een royale slaapkamer en een extra bergruimte. Vanuit deze slaapkamer is er via een vlizotrap toegang tot de zolder.
Tweede verdieping
Op de tweede verdieping bevindt zich de zolder, die extra opbergruimte biedt.
- Type
- Eengezinswoning - Hoekwoning
- Woonoppervlak
- 116 m²
- Inhoud
- 438 m³
- Perceel oppervlakte
- 226 m²
- Aantal kamers
- 4
- Aantal slaapkamers
- 2
- € 285.800 v.o.n.
- Status
- Verkocht onder voorbehoud
- Overdracht
- In overleg
Bijzonderheden
- Perceeloppervlakte: ca. 226 m²
- Woonoppervlakte: ca. 116 m²
- Inhoud woning: ca. 438 m³
- Vloerverwarming op de begane grond en eerste verdieping
- Incl. stelpost voor badkamer en sanitair
- Incl. 6 zonnepanelen en lucht-water warmtepomp
Interesse? Of toch nog vragen?
Vul dan onderstaand formulier in.
Op zoek naar een bepaald object?
Schrijf je in als woningzoekende en blijf op de hoogte van nieuw aanbod.