Geesteren,
De Milt 8 

€ 735.000 k.k.

Op het bedrijventerrein Lutkeberg te Geesteren ligt deze veelzijdige kantoorruimte met mogelijkheid tot het bijkopen van een achtergelegen bedrijfsruimte.

Over dit object

Delen via

De ruimtes, verdeeld over de begane grond en eerste verdieping, zijn efficiënt ingedeeld en eenvoudig aan te passen naar wens. Hierbij kan gedacht worden aan een kantoortuin met kantoorruimtes en spreekkamers, een sport- en/of gezondheidscentrum of als verzamelgebouw. Het object is in 1995 gebouwd en keurig onderhouden. Op de begane grond bevindt zich een fraaie entree, welke toegang biedt tot diverse kantoorruimtes/oefenzalen. Dankzij de grote raampartijen zijn de kantoor-/trainingsruimtes licht en prettig om in te werken. Ook op de eerste verdieping bevinden zich diverse ruimten, zoals tweemaal een trainingszaal voor groepslessen, kleedruimtes en een relaxruimte.

Werkplaats/bedrijfsruimte:
Uniek aan dit aanbod is de mogelijkheid om de kantoorruimtes met de achtergelegen bedrijfsruimte, met overheaddeur en een hoogte van ca. 6 meter, te kopen. Deze ruimte is ideaal als opslag, werkplaats of logistieke uitbreiding. Zo kan de bedrijfsvoering eenvoudig worden opgeschaald en volledig worden afgestemd op de behoeften van jouw onderneming.


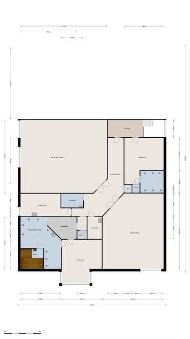
Oppervlakte en indeling
- Begane grond (totale oppervlakte: ca. 387 m²): Entree, kantoor met wachtkamer, technische ruimte v.v. meterkast, trainingsruimte, ontvangstruimte/kantine met balie en openslaande deuren naar buiten, keuken v.v. koelcel, sanitair (1x dames, 1x heren), kleedkamer en doucheruimte.
- Eerste verdieping (totale oppervlakte: ca. 377 m²): Overloop, kleedkamer met doucheruimte en toilet (dames), werkkast, 2x trainingszaal waarvan 1 v.v. airconditioning, beautysalon/relaxruimte, kleedruimte met sauna, dompelbad, relaxruimte en toilet, 2x zonnebankruimte.
- Werkplaats/bedrijfsruimte (oppervlakte: ca. 198 m²)

Bestemmingsplan
De bedrijfsruimte valt onder het vigerende bestemmingsplan 'Albergen en Geesteren', met enkelbestemming 'Bedrijventerrein, bedrijf tot en met categorie 3.2'.

Ligging/bereikbaarheid
Gelegen op het bedrijventerrein "Lutkeberg" te Geesteren. Op circa 15 minuten rijafstand zijn de op- en afritten A35/A1 gelegen richting Deventer, Hengelo en Hardenberg.

Koopprijs
€ 735.000,- k.k.

- Aanvaarding: In overleg.
- Zekerheidsstelling: Bankgarantie of waarborgsom ter grootte van 10% van de koopsom.


Bijzonderheden

  • Oppervlakte begane grond: ca. 387 m²
  • Oppervlakte eerste verdieping: ca. 377 m²
  • Oppervlakte achtergelegen bedrijfsruimte: ca. 198 m²
  • Representatieve multifunctionele ruimtes
  • Verwarming middels c.v.-ketel; Nefit HR Turbo (3x)
  • Warm water middels boiler;
  • Camerasysteem
  • Gedeeltelijk v.v. airconditioning
  • 9 parkeerplaatsen op het eigen terrein
  • Aanvaarding: in overleg
  • Zekerheidsstelling: bankgarantie of waarborgsom ter grootte van 10% van de koopsom

Media

Onze specialist

Luc Weusthuis

  • Register Makelaar | Register Taxateur, Wonen en Bedrijfsonroerendgoed
Luc Weusthuis

Interesse? Of toch nog vragen?

Vul dan onderstaand formulier in.

Op zoek naar een bepaald object?

Schrijf je in als woningzoekende en blijf op de hoogte van nieuw aanbod.