Almelo,
Sniederhof 13
€ 865.000 k.k. / € 1.000 p.m.
Het object is gelegen op een uitstekende zichtlocatie aan de oostelijke invalsweg naar Almelo.
Over dit object
Het object beschikt over diverse kantoren, een werkplaats, montageruimten en een magazijn. Het totale perceel meet 3.635 m². Het bestemmingsplan biedt ruime mogelijkheden waardoor het object voor meerdere doeleinden te gebruiken is. Bedrijvigheid is toegestaan in de categorieën 1 en 2, maar ook detailhandel en dienstverlening (m.u.v. een supermarkt). Het object biedt voldoende parkeergelegenheid op eigen terrein.
Bestemmingsplan:
Er zijn ruime bestemmingsmogelijkheden:
- Bedrijven categorie 1 + 2
- Detailhandel
- Dienstverlening
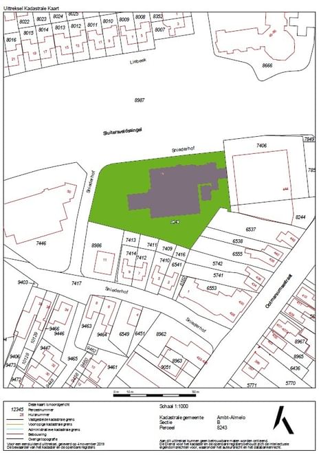
Kadastrale gegevens:
Gemeente Ambt-Almelo, sectie B, nummer 8243, groot 3.635 m².
Wegens verhuizing is dit keurig onderhouden bedrijfspand nu ook (in delen) TE HUUR.
Het pand kan worden opgedeeld in 4 gedeeltes welke separaat te huren zijn. Daarnaast is het mogelijk een combinatie van deze gedeeltes of het pand in zijn geheel te huren.
De verdeling is als volgt:
- Deel 1 (ca. 150 m²): diverse kantoorruimtes, serverruimte, sanitair
- Deel 2 (ca. 322 m²): 1x kantoortuin, 3x kantoorruimte, kantine reproruimte, garderobe, sanitair met wasplaats en toiletten
- Deel 3 (ca. 293 m²): 3x kantoorruimte, magazijn/werkplaats, kantoor magazijn/werkplaats VERHUURD
- Deel 4 (ca. 332 m²): werkplaats en opslagruimte
- Bouwjaar
- 1980
- Perceel oppervlakte
- 3635 m²
- Vraagprijs
- € 865.000 k.k. / € 1.000 p.m.
- Status
- Verkocht
- Overdracht
- In overleg
Bijzonderheden
- Huurprijs deel I: € 1.000,- per maand, excl. g/w/e/BTW
- Huurprijs deel II: € 2.150,- per maand, excl. g/w/e/BTW
- Huurprijs deel III: € 1.400,- per maand, excl. g/w/e/BTW (VERHUURD)
- Huurprijs deel IV: € 1.400,- per maand, excl. g/w/e/BTW
- Bouwjaar 1980, diverse keren uitgebreid/gemoderniseerd
- Perceeloppervlakte 3.635 m²
- Airconditioning in de kantoren
- Alarminstallatie
- Daglicht toetreding door raampartijen en lichtkoepels
- Systeemplafonds deels v.v. TL-armaturen en deels v.v. LED-verlichting
- C.V. verwarmd
- Volledig v.v. databekabeling
- Tochtsluis v.v. automatische deuren (deel II)
- Fietsenstalling
- Achterterrein afsluitbaar middels schuifpoort
- Voldoende parkeergelegenheid op eigen terrein (41x) en op terrein gemeente Almelo (10x)
- Uitstekende ligging aan de doorgaande weg van Almelo naar Ootmarsum
- Huurperiode: in overleg
- Aanvaarding: in overleg
- Waarborgsom: 3x maandhuur
- Tevens bestaat er de mogelijkheid het gehele complex te kopen
Plattegronden
Onze specialist
Luc Weusthuis
- Register Makelaar | Register Taxateur, Wonen en Bedrijfsonroerendgoed
Op zoek naar een bepaald object?
Schrijf je in als woningzoekende en blijf op de hoogte van nieuw aanbod.