Vasse,
6 persoons lodge appartement
prijs op aanvraag
Welkom bij Tante Sien in Vasse. Een prachtig plek in Nationaal Landschap Noord-Oost Twente omgeven door bos, heide en houtwallen. Een plaats met wonderschone natuur, prachtige vergezichten, eeuwenoude bomen, uitgestrekte bossen, heuvels en historische boerderijtjes. Niet voor niets wordt Vasse ook wel de parel van Twente genoemd.
Over dit object
Wie Vasse zegt, zegt Tante Sien. Een begrip. Niet alleen in Vasse, maar ook ver daarbuiten. Generaties zijn ermee opgegroeid. Wat 140 jaar geleden begon met jenever schenken in de boerderij, groeide uit tot een vermaard pannenkoeken- en later- al la carte restaurant.
Anno 2023 wordt Tante Sien nieuw leven ingeblazen. In samenwerking met diverse partijen wordt er een verfrissend nieuw totaalconcept met vele faciliteiten aangeboden voor jong en oud. In totaal worden er 16 comfortabele lodge appartementen voor 2 tot 6 personen gebouwd. Deze zijn nieuw, duurzaam, volledig ingericht en uiteraard gasloos.
Er is volop vertier en ontspanning mogelijk bij Tante Sien. De kinderen kunnen binnen en buiten vrijuit spelen en het aanwezig gastvrije restaurant zorgt voor (h)eerlijk, duurzaam en lokaal eten. Het landelijk en rustgevende gebied is een ideaal vertrekpunt voor de vele fiets- en wandelroutes. De gezellige drukte is te vinden in het nabijgelegen kunststadje Ootmarsum op circa 5 km afstand met diverse restaurants, winkels en galerieën.
De lodges zijn al verkrijgbaar van € 166.694,-- V.O.N. excl. BTW waarbij er een verwacht rendement te behalen is tussen de 4 en 8%. Een interessante belegging met daarnaast nog de mogelijkheid voor drie weken eigen gebruik. Van schoonmaak tot aan het financiële beheer, u wordt als belegger volledig ontzorgt. In de te downloaden brochure is een overzicht gemaakt van de te verwachten huuropbrengsten en kosten.
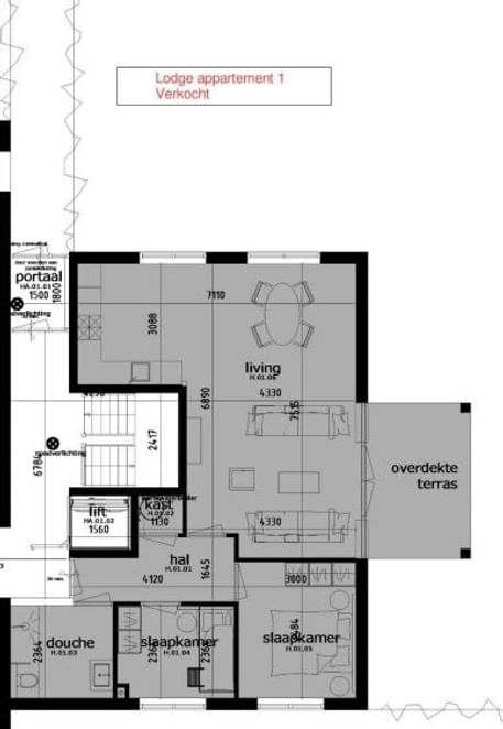
- Bouwjaar
- 1977
- Woonoppervlak
- 71 m²
- Inhoud
- 191 m³
- Aantal kamers
- 3
- Aantal slaapkamers
- 2
- Prijs
- Prijs op aanvraag
- Status
- Verkocht
- Overdracht
- In overleg